SuperBrick Challenge
By Bruce
Hector
What's
big, and ugly, has flies and will make you a $1000.00? A Bolger
Superbrick of course!
A few crazy boatbuilders and lovers
of Phil Bolger and Friends designs have come up with a paying
challenge, $887 at today's date (15 May/03), but it's climbing
fast, to the first builder to launch and sail a Bolger Superbrick.
Why, even at today's rates it's over a grand, in Canadian dollars!
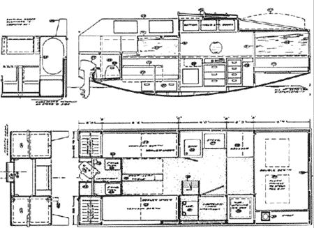
What's a Bolger Superbrick, you
say? Why, it's 20 feet of Bolger Box in it's purest form, it's
a finger in the eye to proper yachtsmen everywhere, it's a sailing
shanty boat! And
you can be the first to build one! Featured in "Boats
With An Open Mind" by Philip C. Bolger it was an immediate
hit with Bolgeristeros everywhere. It had it all: fabulous form,
function, floating fun, fantastic roominess inside and out, some
might say it had too many F's associated with it. As Phil said,
"The joke is blunted if the thing doesn't perform reasonably
well"
But no one built one.
That was a crying shame. People
everywhere were building homemade houseboats, why there was even
a chapter in Russell Conder's "Handmade
Houseboats" on the subject. Many were unsafe, unstable,
unsafe, ugly, or unlikelely to ever be sold, perhaps all five
U's in one boat.

So I created the Superbrick Challenge.
I challenged other Bolgeristers on the Bolger
eGroup, Michalakistas,
and Boatdesigners
to join me in pledging some of their hard earned bucks to the
first builder/launcher of a Superbrick. And they responded, in
spades! Post and counter posts flew, rules were discussed ...
and
cussed! Soon however a consesus was arrived at, and the rules
(liberterians don't need no stinking rules!) ended up being pretty
simple.
To win the pledges the builder
must;
A: Build a recognizable
Bolger Superbrick from Phil Bolger & Friends supplied plans
(currently $200) that follows the spirit (as Phil says, exercise
creativity ONLY above the waterline!).
B: Sail or wallow (with or without the help of
a motor, scull or oars!) around a 1 mile triangular
course with the sail up. C: At the owners/builders
convenience permit the pledgers to inspect and/or ride in the
said Superbrick. Since making friends is the best part of owning
a unique vessl (and a Superbrick will lead to MANY dockside conversations,
believe me!) this should not be too onerous.
All pledgers agree to being named,
with the ammount pledged, regularily on the Bolger list. This
will help to ensure that honour is fulfilled, and they actually
cough up the bucks when the time comes. As one member of the group
said, (it's over 1400 strong now) if we all pledge only $25 someone
can build it at a profit!
We
all hope some intrepid builder will take up the torch, and get
one built. It'll be a real dreamboat.
Bruce
Hector
www.brucesboats.com
|